ASTA
Stabile in Pelago (FI) Procedura n. 51/2007
  • Codice: IMM-0000142874_2
  • N. esperimento: 5
  • N. lotti: Lotto unico
DESCRIZIONE
Dettaglio di vendita

Data di vendita: 28/01/2026
Prezzo base d'asta: € 537.030
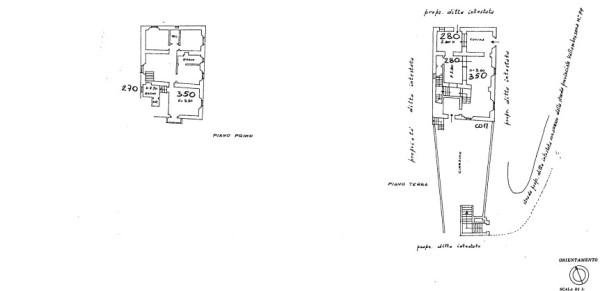
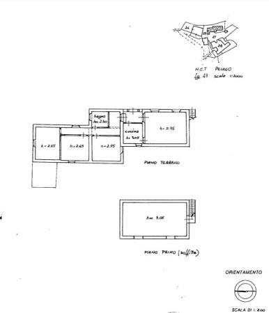
Trattasi di quattro fabbricati ubicati nel Comune di Pelago in via Vallombrosana n. 79 in località Paterno che formano una tenuta denominata Villa Volpaia. La tenuta si compone di: - Villa Padronale di vecchia costruzione risalente all'inizio del XIX secolo ed accessibile da via Vallombrosana attraverso un passo carraio privato composto da cancello e strada privata finita a ghiaia che si innalza per tre tornanti. L'immobile è a pianta rettangolare e si erge per tre piani fuori terra, diviso in due unità immobiliari ad uso abitativo. La prima unità è disposta al piano terra e al primo, risulta distribuita su una superficie complessiva di mq 214 ed è composta da dieci vani oltre gli accessori che consistono in: ingresso, soggiorno, pranzo-cucina, studio e disimpegno al piano terra; mentre al primo piano di trova la zona notte con tre camere da letto, tre servizi, un sottoscala, un locale guardaroba e un balcone. La seconda unità immobiliare, invece, è disposta al secondo piano con una superficie di mq 130, composta da sei vani oltre ad accessori che comprendono: ingresso con vano scala, disimpegno cucina-sala da pranzo, soggiorno, due camere da letto, due servizi igienici, un locale guardaroba ed un balcone. - Casa Colonica anch'essa di vecchia costruzione ma realizzato successivamente alla villa ed edificato nelle immediate vicinanze di quest'ultima, destinato prevalentemente ad uso abitativo. Il fabbricato ha pianta irregolare ed è composto nella porzione sud da due piani fuori terra, mentre in quella nord da un ulteriore piano accessibile attraverso scala esterna. Anche questo stabile risulta diviso in due unità abitative indipendenti. La prima unità immobiliare è parzialmente seminterrato ed avente una superficie di mq 43 con annessa cantina di mq 7, oltre ad un locale deposito di circa mq 10,50. La parte abitativa risulta risulta composta da due vani, cucina e camera oltre servizio e piccola loggia d'ingresso. La seconda unità è posta al piano terra con superfici

Attenzione! Il lotto comprende più immobili; il valore indicato per l’asta si riferisce all’intero lotto complessivo.

ID Bene 3872

Tipo Immobile: Stabile

Tipologia Catastale: A/7 - Abitazione in villini

Superficie: 798mq2

Classe Energetica: DL 192/2005

ID Bene 3873

Tipo Immobile: Stabile

Tipologia Catastale: A/7 - Abitazione in villini

Superficie: 798mq2

Classe Energetica: DL 192/2005

INFORMAZIONI

Per vedere il contenuto accedi o registrati.

VENDI CON NOI  
I campi con * sono obbligatori

Cliccando su INVIA fornisci il consenso al trattamento dei dati come indicato nell' informativa privacy